Валерия Вяткина
Дизайн интерьера
О нас Цены Проекты Контакты
+7 995 147-08-91 telegram

Экспресс-планировка

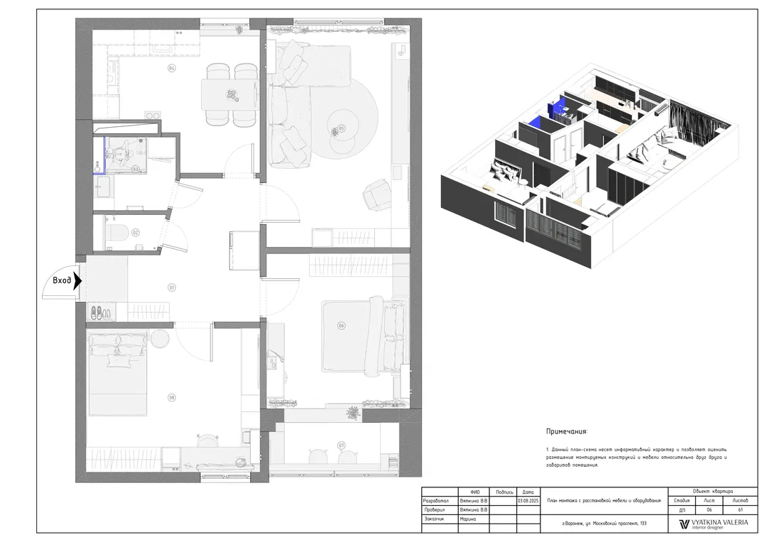
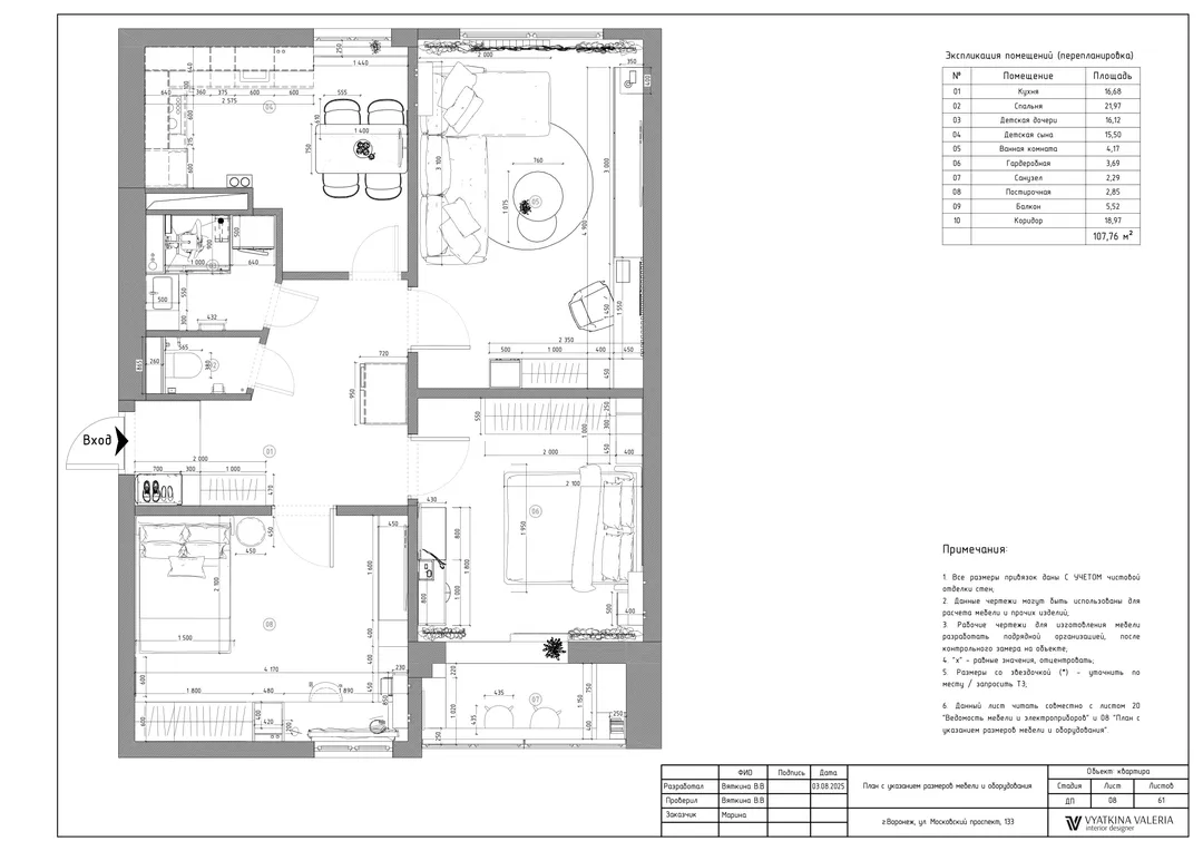
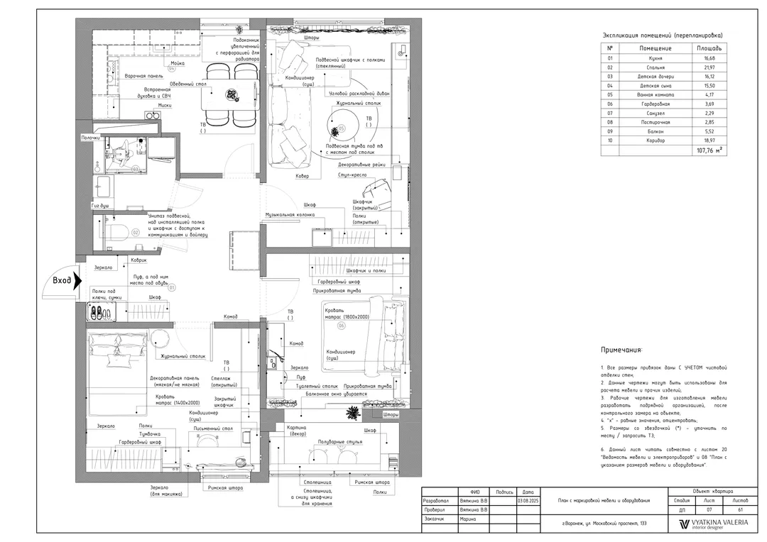
Пример альбома чертежей. Включает обмерный план, варианты планировки и итоговую расстановку мебели.

Экспресс-планировка

Быстрое и эффективное решение для тех, кому нужно грамотное зонирование пространства без детальной проработки интерьера. Посмотрите, как выглядит готовый набор чертежей.

Скачать альбом (PDF, 7MB)
← Вернуться к ценам

© 2026 Валерия Вяткина. Все права защищены.

Студия дизайна интерьера